Saltar al contenido
  • Alianzas Institucionales
  • Socios accionistas
  • Empleos
  • Activos en venta
  • Educación Financiera
  • Social y Ambiental
  • Agentes Corresponsales
Banco PopularBanco Popular
    • Inicio
    • Nosotros
      • Quienes Somos
      • Junta Directiva
      • Funcionarios
    • Productos
      • Ahorro e Inversión
        • Popular
        • Alerito
        • VIP Popular
        • Dólares Popular
        • Programado Popular
        • Remesas de mi Gente
        • Cheques
        • Certificado de Depósitos a Plazo Fijo
      • Microcréditos
      • PYME
      • Préstamos de Consumo
        • Préstamos Personales
    • Servicios
      • Popular en Línea|Popular Móvil
      • Remesas
      • Venta de Dólares
      • Agentes Corresponsales
      • Protección Popular
      • Servicios Públicos
      • Pago de Impuestos
      • Recargas Electrónicas
    • Bonos Corporativos
    • Agencias
  • SOLICITA TU CRÉDITO
  • POPULAR EN LÍNEA

Dirección

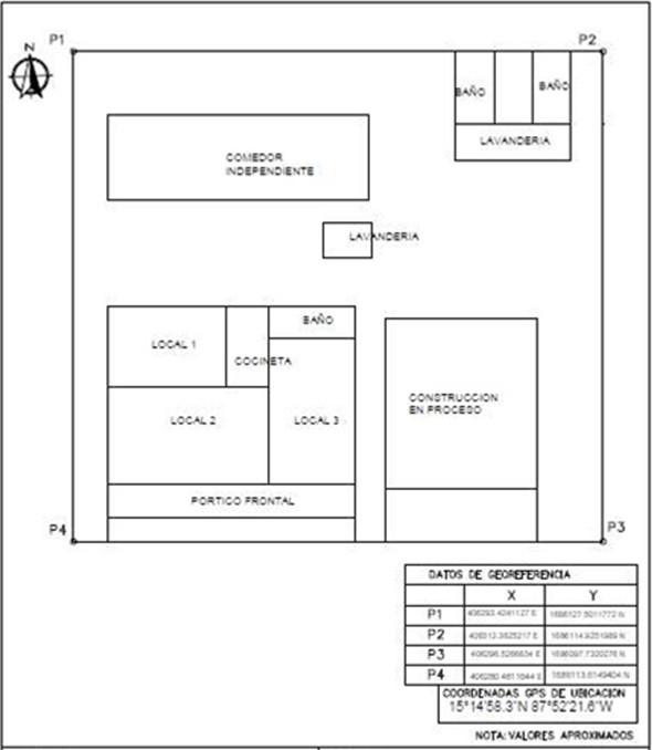
Aldea Agua Blanca Sur, El Progreso,Yoro

Detalles

Terreno de 866.17 vrs2. Consta de vivienda de 1 nivel con 3 habitaciones que se utilizan como locales, cocineta, 1 Baño Pórtico frontal , Galera Frontal Pórtico, Aceras, Área de Lavandería con Baños, Pórtico frontal en lavandería, Comedor independiente, Fosa Séptica, muro frontal y lateral, Pila nueva y construcción en proceso

Precio

L3,700,000.00

Esta entrada fue publicada en Activos Zonas, Zona Norte. Marque como favorito el Enlace permanente.
Usuario Financiero
  • Tarifario de productos y servicio
  • Reclamos
    • CNBS – DPUF
    • Hoja de Reclamación
    • Procedimiento de Reclamos
    • Interponer Reclamo
    • Resumen de Reclamos
    • Quejas y sugerencias
  • Modelos de Contrato
  • Conoce y Compara – CNBS
  • Condiciones Generales Remesa Segura
  • Informe de Riesgos
  • Decálogos
  • FATCA
  • Términos y Condiciones ChatBot Banco Popular
  • Preguntas Frecuentes
    • Preguntas frecuentes sobre cuentas de ahorro
    • Preguntas frecuentes sobre Certificados de Depósito a Término (CDT)
    • Preguntas frecuentes sobre Popular en Línea (Personas)
    • Preguntas frecuentes sobre Popular en Línea Empresarial (PEL Empresarial)
Enlaces Rápidos
  • Memoria Financiera Anual
    • Memoria Anual 2024
    • Memoria Anual 2023
    • Memoria Anual 2022
    • Memoria Anual 2021
  • Memoria de Sostenibilidad
    • Memoria de Desempeño Social, Ambiental y Gobernanza 2023
    • Memoria de Sostenibilidad 2022
    • Memoria de Sostenibilidad 2021
  • Bolsa de Empleo
  • Red de Agencias
  • CNBS
  • Plazo final alivio temporal
Estados Financieros
  • Alivio Temporal COVID-19
    • Alivio Temporal COVID-19 | OCTUBRE
    • Alivio Temporal COVID-19 | JULIO
    • Alivio Temporal COVID-19 | MARZO
  • Estado Financiero Auditados
    • Informe de Comisario 2024
    • Estados Financieros Auditados 2024
    • Estados Financieros Auditados 2023
    • Estados Financieros Auditados 2022
    • Estados Financieros Auditados 2021
    • Estados Financieros Auditados 2020
    • Estados Financieros Auditados 2019
    • Estados Financieros Auditados 2018
    • Estados Financieros Auditados 2017
    • Estados Financieros Auditados 2016
    • Estados Financieros Auditados 2015
  • Estados Financieros Trimestrales
    • Estado Financiero Trimestral 2025
      • Estados Financieros Trimestrales septiembre 2025
      • Estado Financiero Trimestral junio 2025
      • Estado Financiero Trimestral marzo 2025
    • Estado Financiero Trimestral 2024
      • Estado Financiero Trimestral septiembre 2024
      • Estado Financiero Trimestral junio 2024
      • Estado Financiero Trimestral marzo 2024
    • Estado Financiero Trimestral 2023
      • Estado Financiero Trimestral septiembre 2023
      • Estado Financiero Trimestral junio 2023
      • Estado Financiero Trimestral marzo 2023
    • Estado Financiero Trimestral 2022
      • Estado Financiero Trimestral septiembre 2022
      • Estado Financiero Trimestral junio 2022
      • Estado Financiero Trimestral marzo 2022
    • Estado Financiero Trimestral 2021
      • Estado Financiero Trimestral septiembre 2021
      • Estado Financiero Trimestral junio 2021
      • Estado Financiero Trimestral marzo 2021
    • Estado Financiero Trimestral 2020
      • Estado Financiero Trimestral septiembre 2020
      • Estado Financiero Trimestral junio 2020
      • Estado Financiero Trimestral marzo 2020
Contáctenos
Oficina Principal: Col. Palmira, Edificio Banco Popular, entre calle Maipú y calle República del Perú, Tegucigalpa.

Teléfono: 2276-8140
Chatbot: 9435-6625
Banco Popular Honduras
bancopopularhn
Copyright 2026 © Banco Popular S.A. Honduras
  • Menú
  • Categorías
  • Alianzas Institucionales
  • Socios accionistas
  • Empleos
  • Activos en venta
  • Educación Financiera
  • Social y Ambiental
  • Agentes Corresponsales
  • Inicio
  • Nosotros
    • Quienes Somos
    • Junta Directiva
    • Funcionarios
  • Productos
    • Ahorro e Inversión
      • Popular
      • Alerito
      • VIP Popular
      • Dólares Popular
      • Programado Popular
      • Remesas de mi Gente
      • Cheques
      • Certificado de Depósitos a Plazo Fijo
    • Microcréditos
    • PYME
    • Préstamos de Consumo
      • Préstamos Personales
  • Servicios
    • Popular en Línea|Popular Móvil
    • Remesas
    • Venta de Dólares
    • Agentes Corresponsales
    • Protección Popular
    • Servicios Públicos
    • Pago de Impuestos
    • Recargas Electrónicas
  • Bonos Corporativos
  • Agencias
  • Síguenos
  • Síguenos
  • Síguenos